Retour
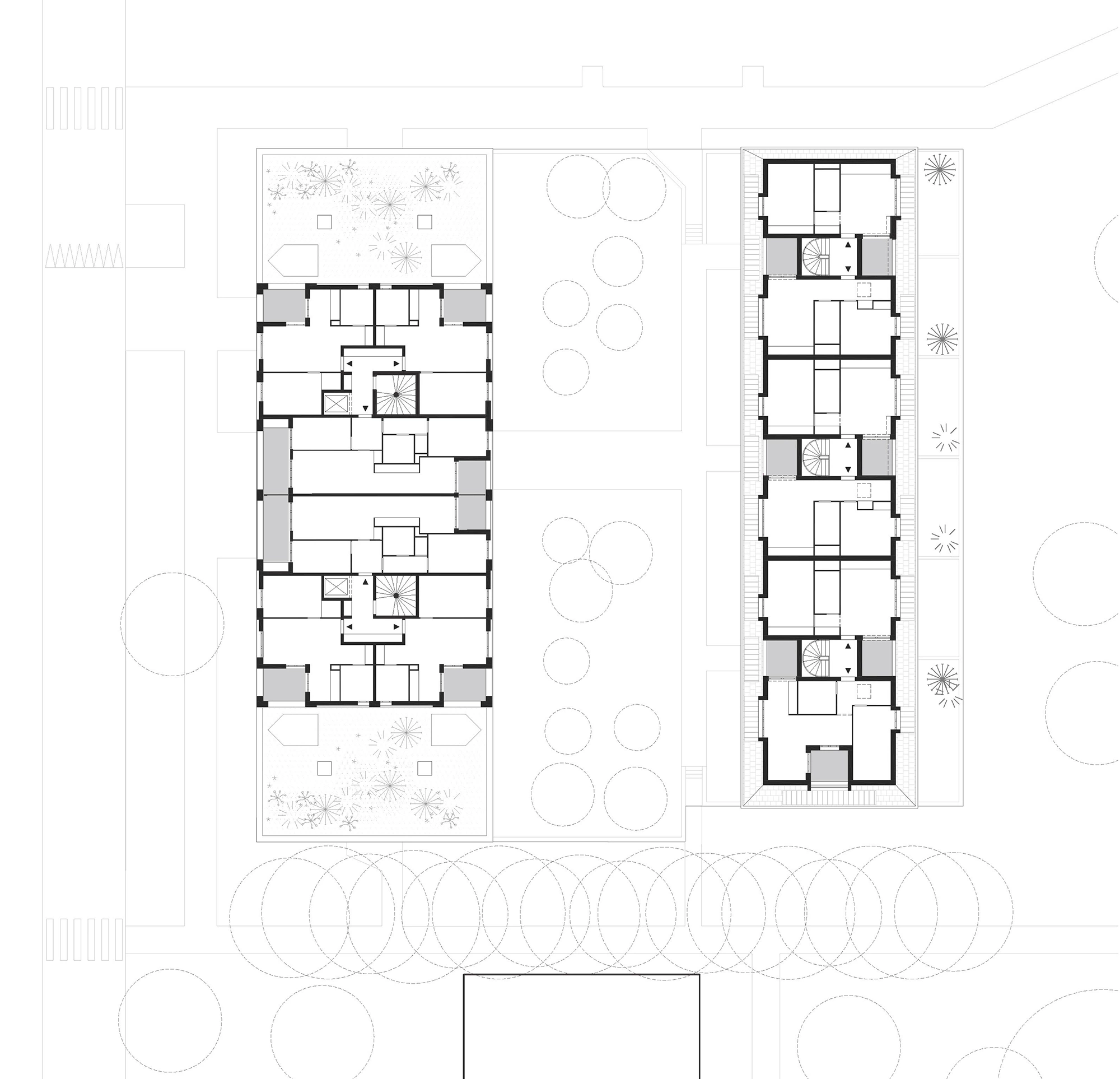
LOGEMENTS COLLECTIFS

LOGEMENTS COLLECTIFS

PROGRAMME : 45 LOGEMENTS FAMILIAUX
MO : GREEN-CITY
AMENAGEUR : EPAPS
ARCH. COORDINATEUR : GERME & JAM
BUDGET : 6,5 M€ HT
LIEU : GIF-SUR-YVETTE
CALENDRIER : LIVRAISON 2027
EQUIPE : GIULIA SASSIER, CLAIRE PUAUD, MICKAEL GAUME
LOGEMENTS COLLECTIFS - 1
LOGEMENTS COLLECTIFS - 2
LOGEMENTS COLLECTIFS - 3
LOGEMENTS COLLECTIFS - 4
LOGEMENTS COLLECTIFS - 5
LOGEMENTS COLLECTIFS - 6